The River Front
At Figueroa Homes, we bring decades of experience to the table, crafting homes that reflect your unique style without the hefty price tag. With our curated plans and finishes, you can create a space that feels custom-made for you. As demand rises, now’s the time to secure your riverside retreat in the beautiful Shenandoah Valley!
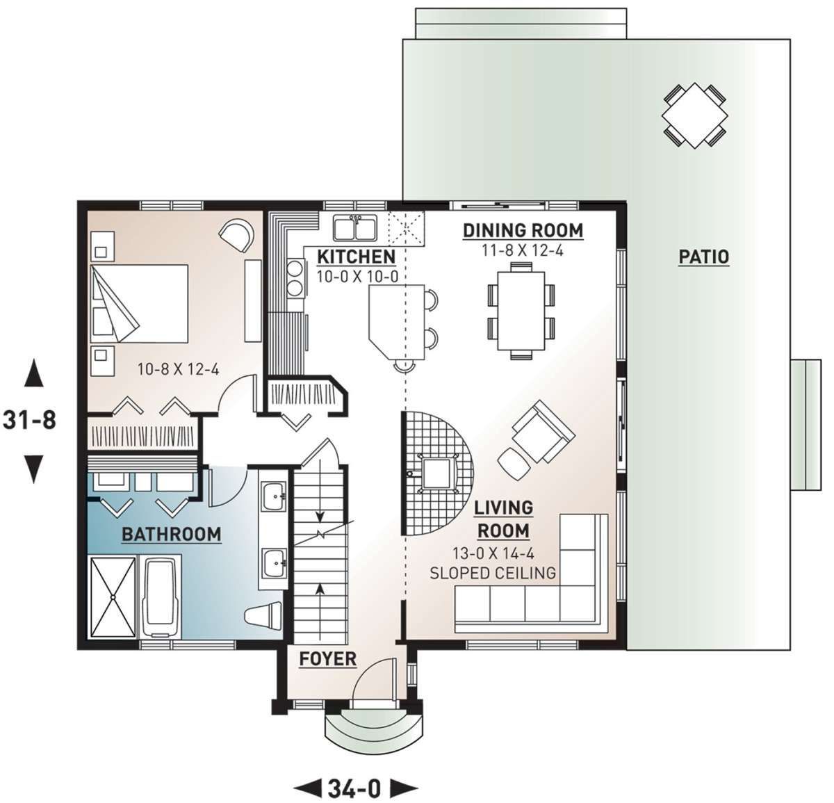
(Click on any image for a larger view)




